Highstones, Amberley
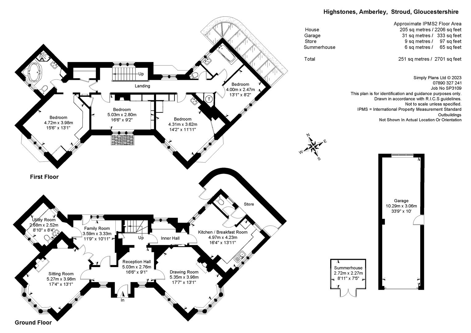
Reception Hall, Sitting Room, Drawing Room, Family Room, Kitchen/Breakfast Room, Utility Room, Inner Hall/Back Kitchen, 4 Bedrooms, Principal with En-Suite, Family Bathroom, Separate WC, English Cottage Garden, Tandem Garage, Views
- MAGNIFICENT ARTS AND CRAFTS HOUSE
- SPECTACULAR VILLAGE LOCATION
- FAR REACHING VIEWS
- 4 BEDROOMS
- 3 RECEPTION ROOMS
- PERIOD FEATURES
- ENGLISH COTTAGE GARDEN
- SUMMERHOUSE
- GARAGE
Full Details
DESCRIPTION
Highstones is an exceptional Grade II Listed Country house in a truly magnificent location. Designed by Thomas Falconer in the early 20th Century, the house is a perfect example of the 'butterfly plan', so named because of its charming curved shape, creating the perfect cocoon. The home offers a superb Arts and Crafts design, seamlessly blending into the natural beauty of its surroundings. A spacious reception hall creates a welcoming entrance space with the main reception rooms leading off to both sides - one in each side of the 'butterfly's wings'. Beautifully proportioned, both the sitting and drawing room benefit from wonderful valley views and offer ample living and entertaining spaces. Mullion leaded windows throughout allow natural light to flood in and original fireplaces offer extra warmth and cosiness for the colder months. Double doors open from the sitting room to a family room, ideal as a third reception or perfect for opening the doors and combining the two spaces. The kitchen is laid out to provide ample storage space, with plenty of room for a dining table plus a separate covered storage room. A utility room leads off the family room, providing a useful space for laundry plus a WC.
A staircase off the rear hallway leads to four first floor bedrooms, the principal with en-suite. All four bedrooms offer sensational valley views. A family bathroom and separate WC are also located at this level.
Cotswold dry stone walling envelopes the garden with gently sloping lawns and well stocked borders to the front and side of the house. The rear garden is tiered with a kitchen garden and summerhouse plus several seating areas, perfect for alfresco entertaining. A tandem garage provides parking for two cars.
LOCATION
Highstones is located in the heart of the Cotswold village of Amberley in a magnificent elevated location, overlooking the Woodchester Valley. Amberley is a quintessential Cotswold village with a wonderful sense of community spirit and two popular pubs, both within a short walk of Highstones. The surrounding common offers over 600 acres of National Trust land, ideal for dog walking and host to one of three challenging golf courses in the local area.
One of the key draws to the area is the excellent choice of schools. Amberley itself has a sought after primary school just a few minutes walk from Highstones and there are several excellent grammar schools in Stroud, Gloucester and Cheltenham. There is also a good choice of schools in the private sector, including Beaudesert within walking distance of Highstones and Wycliffe which is only a short drive away, in Stonehouse.
The nearby market towns of Stroud, Minchinhampton and Nailsworth all offer excellent local amenities with several major supermarkets in Stroud, including Waitrose. Both Minchinhampton and Nailsworth have a good selection of coffee shops and Nailsworth has many restaurants and boutique shops. London is within 2 hours by car or circa 90 minutes by train from nearby Stroud and the M5 and M4 motorways are both easily accessible.
DIRECTIONS
Leave our Minchinhampton office along West End, leading into Windmill Road and out onto Minchinhampton Common. Turn left at the T junction and then immediately right. After circa 0.5 miles you will pass The Amberley Inn on your right hand side; take the first right along a private track almost immediately after the pub and you will see Highstones in front of you.



























































