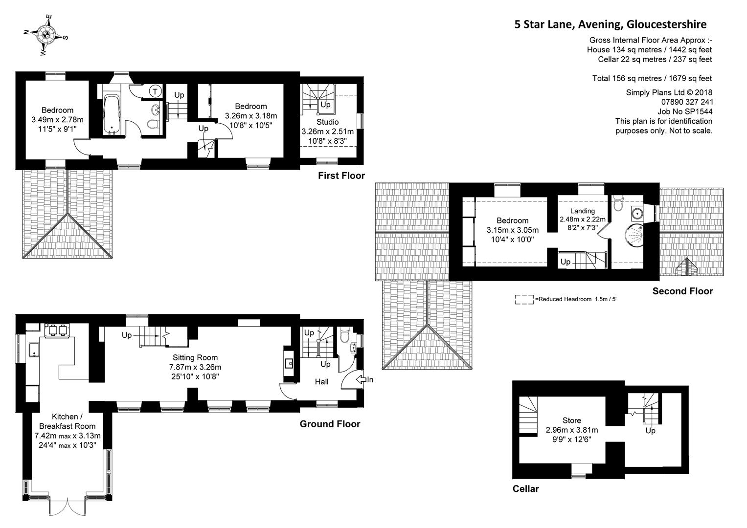
Star Lane, Avening, Tetbury
- Detached Period Cottage
- 3 Bedrooms
- 2 Reception Rooms
- Eat-In Kitchen/Dining Room
- 2 Bathrooms
- Studio/Home Office
- Landscaped Gardens
- Off Street Parking for Several Cars
- Lovely Views
- Offered Chain Free
Full Details
DESCRIPTION
Lavender Cottage is a charming detached Cotswold home in the sought village of Avening which is found between Minchinhampton, Nailsworth and Tetbury.
The property was extended in 2012 to add an entrance hall with cloakroom off, a delightful first floor studio/home office in addition to creating full access to the substantial barrel vaulted cellar.
The sitting room with wood burning stove, is in the centre of the home and extends the full width of the original cottage. This room, with oak flooring, is filled with natural light from four sash windows that overlook the garden. Beyond this is the large kitchen/breakfast room with vaulted ceiling and feature beams with French doors opening out to a terrace.
On the first floor are two double bedrooms sharing a central family bathroom. The second floor includes the third bedroom with built in storage, a large landing and separate shower room, perfectly set up to be used as a principle bedroom suite.
There are lovely countryside views from all aspects of the house and garden which has been landscaped with both lawns and patio area.
In addition to the side of the property is ample off-street parking for up to three cars.
Please note: The property is now vacant and some photographs were taken whilst the property was still occupied.





































