Slad, Stroud
- 18th Century Period Cottage
- Idyllic Rural Location
- Wonderful Views
- Ample Parking
- Pretty Garden
- Period Features
- Detached Barn
- Walking Distance from Village Pub
- Oak Framed Garden Room
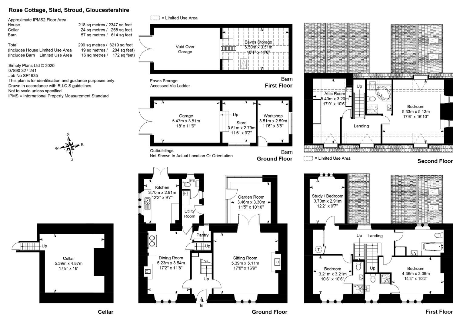
- Large Cellar
Full Details
Description
Rose Cottage offers the perfect example of quintessential Cotswold living. Sitting in an elevated location, a handsome facade sets the tone to the immense charm and character that runs throughout the entire property.
Opening to a reception hall with room to hang coats, the cottage has an instantly welcoming feel with a Cotswold limestone floor ideally suited to muddy boots and country living.
The cottage benefits from a host of period features including deep window seats, stone mullion windows, aged beams and original fireplaces.
The dual aspect kitchen is clearly the heart of the home; open-plan, the space has a living area with room for a good-sized table and armchairs to the front and more functional fitted units in a later extension set to the rear. Doors open to the garden from the rear section of the kitchen, ideal for alfresco dining.
A green Aga creates a warming focal point and fitted units in a rich blue hue provide ample discreet storage. A walk-in pantry provides additional storage and a doorway leads down to a large full-height cellar, useful as a wine cellar or log store but with obvious potential to convert for alternative use such as a gym or home cinema.
There is a cloakroom and boot room for storing country paraphernalia after a walk in the surrounding countryside.
The sitting room is a handsome space with a central woodburning stove ideal for cosy nights at home and a pretty window seat overlooking the front aspect.
An oak framed garden room with underfloor heating leads off the rear of the sitting room opening directly to the garden, creating the perfect spot for summer entertaining.
Five bedrooms are located across the upper two floors, three with en-suite and all benefitting from wonderful views either across the rolling fields or over to the village. There is ample built-in storage and a large storage/airing cupboard on the first floor. Many of the rooms benefit from pretty window seats for relaxing and soaking up the panorama.
A good-sized family bathroom is also located on the first floor.
Garden and Barn
The garden is largely set to the rear and side of the cottage overlooking open fields. A level lawn is flanked by a choice of seating areas, including a raised patio with wonderful views.
Steps lead up to a good-sized barn/workshop, clad in larch wood from Cirencester's Bathurst estate. Divided into two, the one section would make an ideal home office and the remainder of the barn is currently used as a workshop/storage. The barn would convert well into additional living space, subject to the necessary planning consent.
A gravel parking area is located to the side of the house and further gated access higher up the lane opens to further parking and the barn.





































































